Close
Scroll Top
Primary Menu
Projects
All
Education
Operations
Recreation
Aviation
Workplace
Civic
Profile
Firm
People
Culture
15 Years of Design
Legacy
Accolades
Careers
Contact
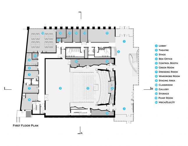
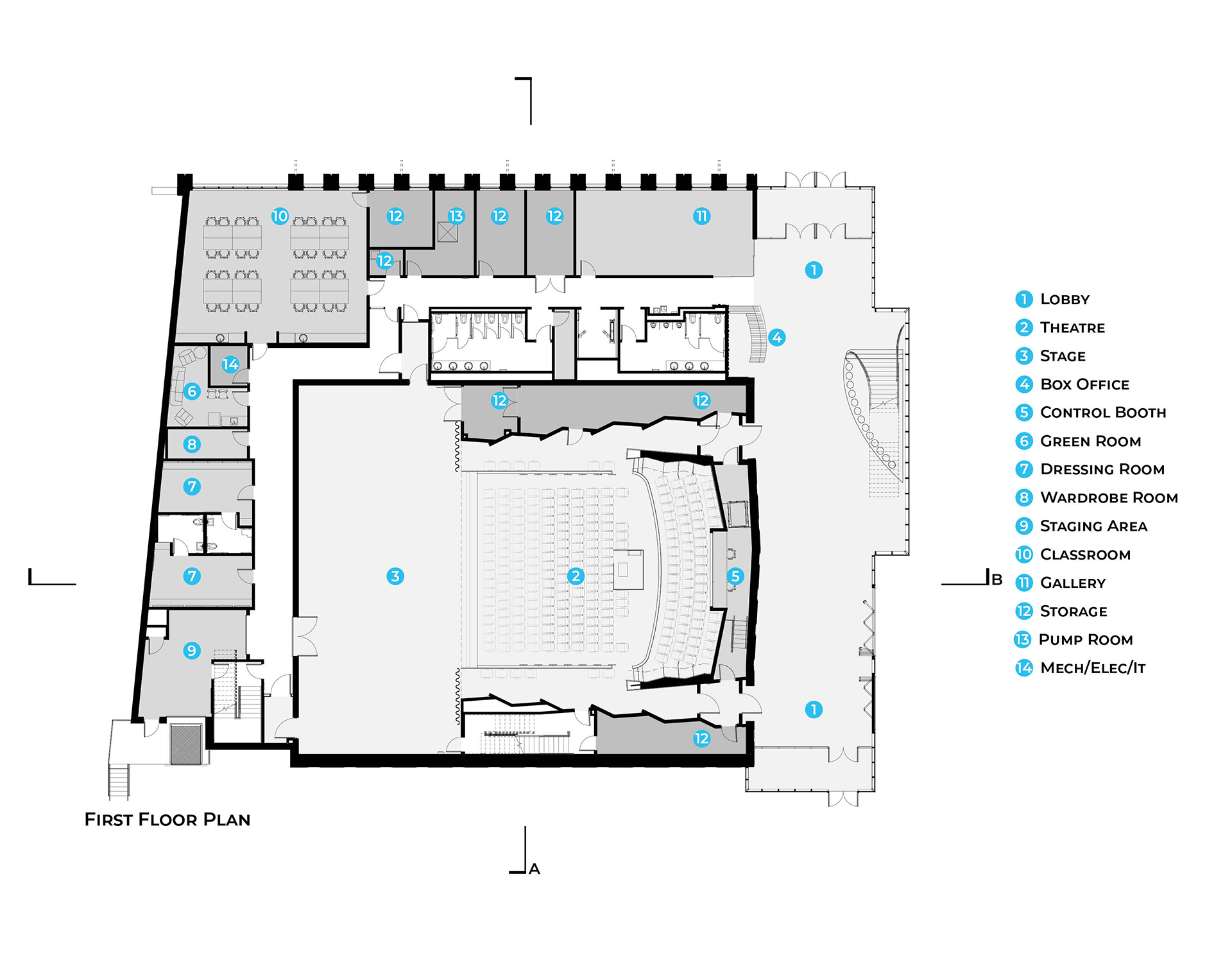
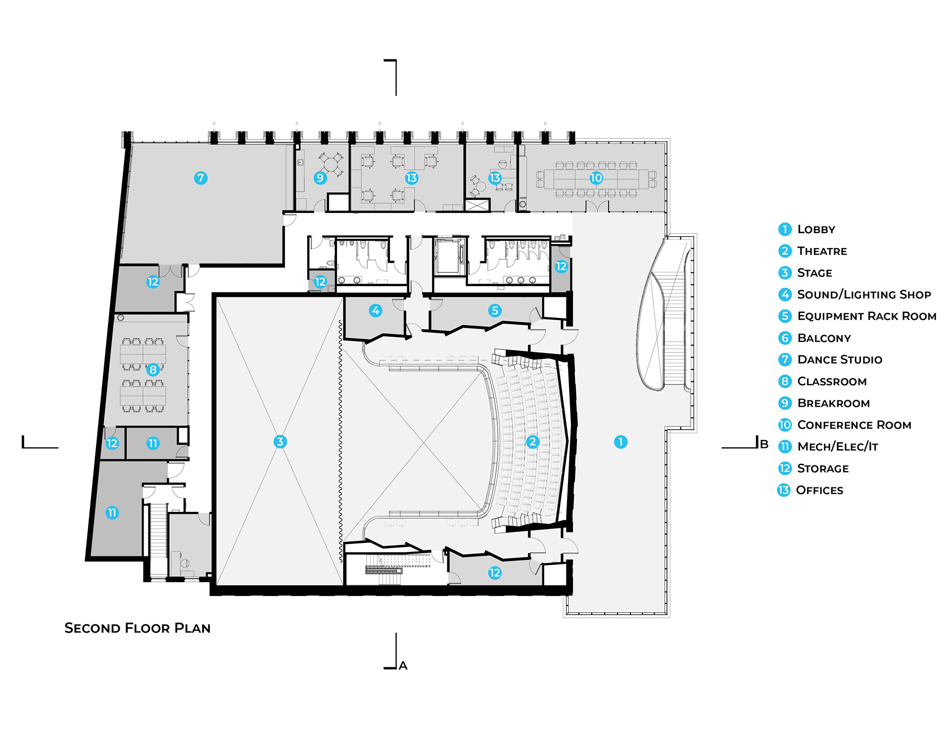
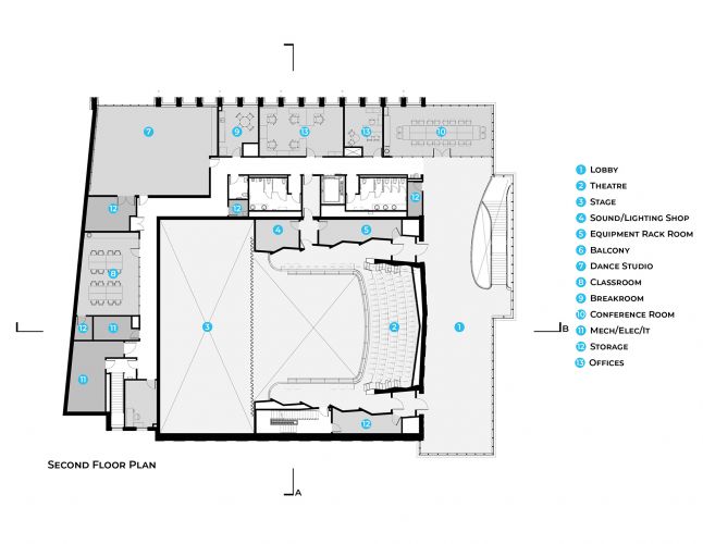
CAIN Center FOR THE ARTS
Cornelius, NC - 30
,000 sf
(In Association With Steinberg Hart)
2023 - ABC EXCELLENCE IN CONSTRUCTION AWARD
2023 - Charlotte Business Journal Heavy Hitters Commercial Real Estate Award
Back to Civic